<>
<>
庫頂噴吹脈沖袋式除塵器是用于料倉排氣通風除塵,安裝 于料倉頂部,由濾袋捕集的粉塵,經壓縮空氣反吹清灰后,粉 塵仍落人料倉內,省去了一般除塵器所需的進風管道及回收設 備。具有結構緊湊,可自動定時淸灰,使用維修方便等優點。
KMC型庫頂噴吹脈沖袋式除塵器是為配合火電廠粉煤灰正壓系統標準化設計,適用于輸灰系統的庫頂上排氣除塵。8m庫、10m庫、12m庫分別選用 KMC-48型、KMC-96型、KMC-144型。也適用于其他行業的大、中型料庫頂上排氣除塵。
KMC型庫頂噴吹脈沖袋式除塵器結構新穎,安裝方便,淸灰效果良好,更換濾袋容 易,能在露天全氣候連續工作,可以利用庫內氣體余壓排氣,也可以設置吸氣風機將庫內氣體排出。其主要技術參數見表6-71,安裝和外形尺寸見圖6-66和表6-72。如采用抽氣風機吸風,抽風機按表6-73選用。


JSM-C型庫頂反吹脈沖袋式除塵器專門用在料庫頂上作庫頂除塵、皮帶輸送機除塵,也可用 作倒包、加料組合灰門除塵。其特點是集風機、電機、消聲器、卸料器和自動淸灰系統為一體的 除塵器組,處理風量為1000?4000mVli,使用溫度有120X:以下常溫和230T:高溫兩種。 JSM-C型庫頂反吹脈沖袋式除塵器技術性能見表6-74,安裝和外形尺寸見圖6-67和表 6-75。

JH、JD型庫頂反吹脈沖袋式除塵器專用于料庫排氣通風除塵。安裝于料庫頂部,由濾 袋捕集的粉塵,經壓縮空氣反吹清灰落人料庫內。
JH型為矩形殼體,一般用于中、低壓氣力輸送。其尺寸見圖6-68和表6-76。 JD型為圓筒形殼體,用于髙壓氣力輸送。其尺寸見圖6-69和表6-77。 JH、JD型出風口尺寸見圖6-70和表6-78。



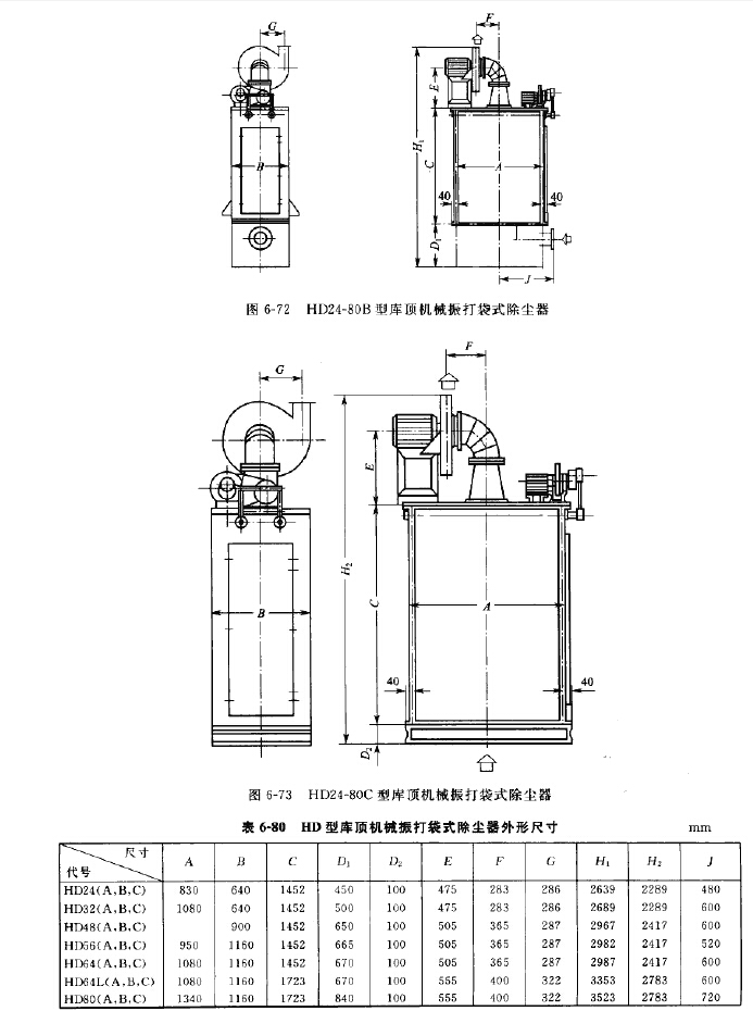
HD型庫頂機械振打袋式除塵器主要用于庫頂除塵,也可用于庫底、帶輸送及局部塵源 除塵。其結構特點是電動機帶動偏心輪,可以定時振打進行清灰。從除塵器清除下來的粉塵 可直接排人倉內,也可落在皮帶上。
該系列有6種規格,每種規格分為A、B、C三種形式,A種設灰斗,B種設抽斗,C 種不設灰斗和抽斗。下部設法蘭直接配接庫頂。其技術性能見表6-79,外形尺寸見圖6-71、 圖 6-72、圖 6-73 和表 6-80。

