<>
<>
氣箱式脈沖袋式除塵器主要特點是在濾袋上口不設文氏管,也沒有噴吹管,是用脈沖閥 直接向凈氣室噴吹壓縮空氣,對濾袋進行淸灰。適用于高濃度粉塵處理,可不設旋風除塵器 直接使用。
氣箱式脈沖袋式除塵器本體分隔成若干個箱區,每箱有32、64、96、128條濾袋。并在 每箱側邊出口管道上有一個氣缸帶動的提升閥,其作用是接收清灰控制器發出的信號,逐個 對箱體完成淸灰動作。其結構如圖6-54所示。
氣箱式脈沖袋式除塵器的濾袋材質,在常溫時一般采用滌綸針刺氈,在高溫下選用美塔 斯、Pm或氟美斯針刺氈。淸灰控制可選用定時控制,也可選用定差壓控制。
①LCPMGS型氣箱式脈沖袋式除塵器 LCPMGS型氣箱式脈沖袋式除塵器規格有32 袋和64袋兩種。LCPMGS-32型氣箱式脈沖袋式除塵器技術性能見表6-56,外形尺寸見圖 6-55。LCPMGS-64型氣箱式脈沖袋式除塵器技術性能見表6-57,外形尺寸見圖6-56。
②PPDC型氣箱式脈沖袋式除塵器PPDC型氣箱式脈沖袋式除塵器型號有PPDC96型 和PPDC128型,每種型號有單列和雙列兩種規格。
PPDC96型單列氣箱式脈沖袋式除塵器主要性能見表6-58,主要尺寸見圖6-57和表6-59。




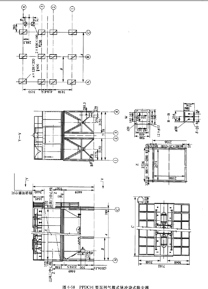
PPDC96型雙列氣箱式脈沖袋式除塵器主要性能見表6-60,主要尺寸見圖6-58和表6-61。 PPDC128型單列氣箱式脈沖袋式除塵器主要性能見表6-62,主要尺寸見圖6-59和表6-63。 PPDC128型雙列氣箱式脈沖袋式除塵器主要性能見表6-64,主要尺寸見圖6-60和表6-65。






